Datenschutzeinstellungen
Diese Webseite benutzt Cookies. Nähere Informationen erhalten Sie in unserer Datenschutzerklärung. Sie können Ihre Entscheidung jederzeit dort ändern.
Ein neues Quartierzentrum bringt Leben ins Unterdorf. Das Projekt reagiert mit zwei unterschiedlichen Typologien auf die spannungsvolle Situation.
Ausgangslage
Das Areal befindet sich an zentraler Lage in Steffisburg. Entlang der Unterdorfstrasse besteht eine kleinteilige, dörfliche Baustruktur mit teilweise historischer Bausubstanz. Dahinter liegt das ehemalige Gschwendareal, eine grobkörnige, dichte Gewerbeüberbauung am Ufer der Zulg. Starker Durchgangsverkehr belastet das Unterdorf und dessen öffentlichen Raum.
Gestaltungskonzept
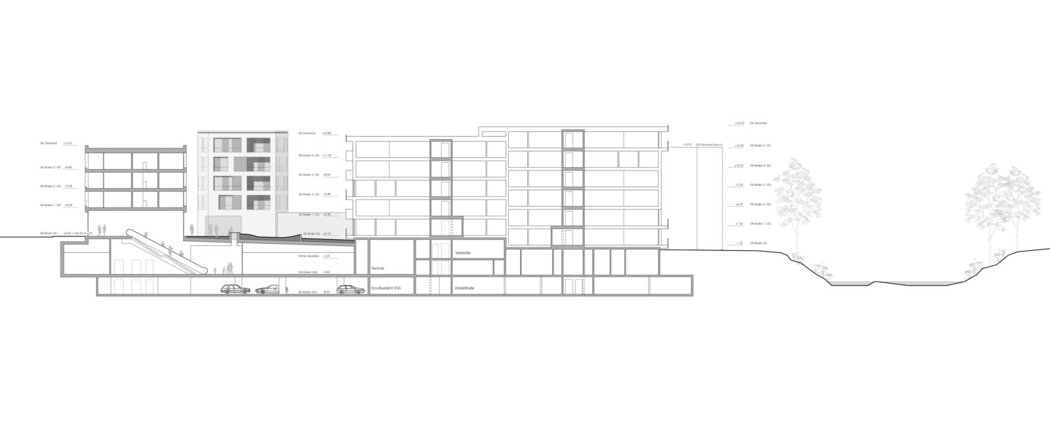
Das Areal wird von zwei markanten Elementen, der Zulg im Nordwesten und er Unterdorfstrasse im Südosten, begrenzt. Aufbauend auf diesen zwei Elementen wird das Areal in zwei unterschiedliche Teile gegliedert: Entlang der Unterdorfstrasse definieren vier nahe beieinanderliegende Längsbauten den Strassenraum. Ein Platz, geschaffen durch einen zurückspringenden Gebäudeteil, markiert das neue Zentrum im Unterdorf. Belebt wird der Platz durch die Bushaltestelle, ein Kaffee und den Haupteingang zur Mall im Untergeschoss. Hartbeläge im Aussenraum und die massive Bauweise der Gebäude markieren den geschäftigen Teil der Überbauung. Auf der gesamten Länge des Platzes wird es Fussgängern ermöglicht die Unterdorfstrasse zu queren, was den Verkehr beruhigt und den öffentlichen Raum belebt.
Entlang der Zulg werden kammartig vier Zeilenbauten in das reich begrünte, sanft abfallende Gelände gesetzt. In der Höhe gestaffelte Gebäude in Holz sollen hier einen Übergang von der belebten Unterdorfstrasse zum ruhigen Spazierweg am Ufer der Zulg schaffen.
Die zwei gegensätzlichen Teile der Überbauung werden mit einem halböffentlichen Hofraum verbunden. Eine grosszügige Spielfläche bildet das zentrale Element des offenen Hofes, mittelkronige Bäume gliedern den Aussenraum und leiten vom Hof zu den Hauseingängen und weiter zum Ufer der Zulg.
Standort
Gschwend-Areal
Veranstalter:in
HRS Investment AG
Studienauftrag
Februar 2014 bis Juli 2014
Architektur: Planungsteam
Fahrni Architekten AG, Dällenbach/Ewald Architekten AG