Datenschutzeinstellungen
Diese Webseite benutzt Cookies. Nähere Informationen erhalten Sie in unserer Datenschutzerklärung. Sie können Ihre Entscheidung jederzeit dort ändern.
Ausgangslage
Die Landi Thun Genossenschaft beabsichtigt die Realisation der mit dem Studienauftrag konzipierten Wohnüberbauung. So soll in Uetendorf eine homogene Überbauung mit insgesamt sechs Mehrfamilienhäusern erstellt werden.
Konzept
Die ortsbauliche Setzung und die Volumetrie der Gebäude wird aus dem vorliegenden Richtprojekt übernommen. Die dörfliche Bebauungsstruktur im Ortskern orientiert sich architektonisch sowie funktional an der Dorfstrasse. Die mehrheitlich zwei- oder dreiseitig orientierten Wohnungstypologien reagieren geschickt auf die Umgebung. Die Ausgestaltung der Gebäudevolumen wird in zwei von der Bahnhofstrasse erschlossenen Baukörper, sowie in vier von der Dorfstrasse bzw. via Platz adressierten Gebäude ausgestaltet. Die Baukörper ab Bahnhofstrasse differenzieren sich folge dessen in der Farbgestaltung und in der Ausgestaltung des obersten Geschosses leicht von den restlichen Baukörpern. Die Differenzierung bricht die Wirkung einer zu grossen Überbauung und bringt die Logik der Zugehörigkeit in der Adressierung subtil zum Ausdruck.
Gebäude welche an den direkten öffentlichen Raum anschliessen erhalten Gewerbeflächen im muralen Sockelgeschosse. Gebäude innerhalb der Parzelle werden als Hochparterre Einheiten geplant. Die Wohngeschosse erhalten eine Aussenhülle aus vorfabrizierten Holzelementen. Die Holzelemente sind aussen mit einer stehenden Holzreliefschalung aus graubraun lasierter Fichte verkleidet. Die Aussenbekleidung der Holzelemente ist - im Bereich der Geschossdecken und Brüstungen - mit liegenden Bändern strukturiert. Analog zu den ursprünglichen - im dörflichen Kontext üblichen - Fensterläden wird ein Gestaltungselement aus einer flächigen Holzschalung seitlich der Fenster erstellt. Der Sonnenschutz für Loggien und Schaufenster wird durch eine textile Gelenkarmmarkise in farbigen Akzenten gelöst.
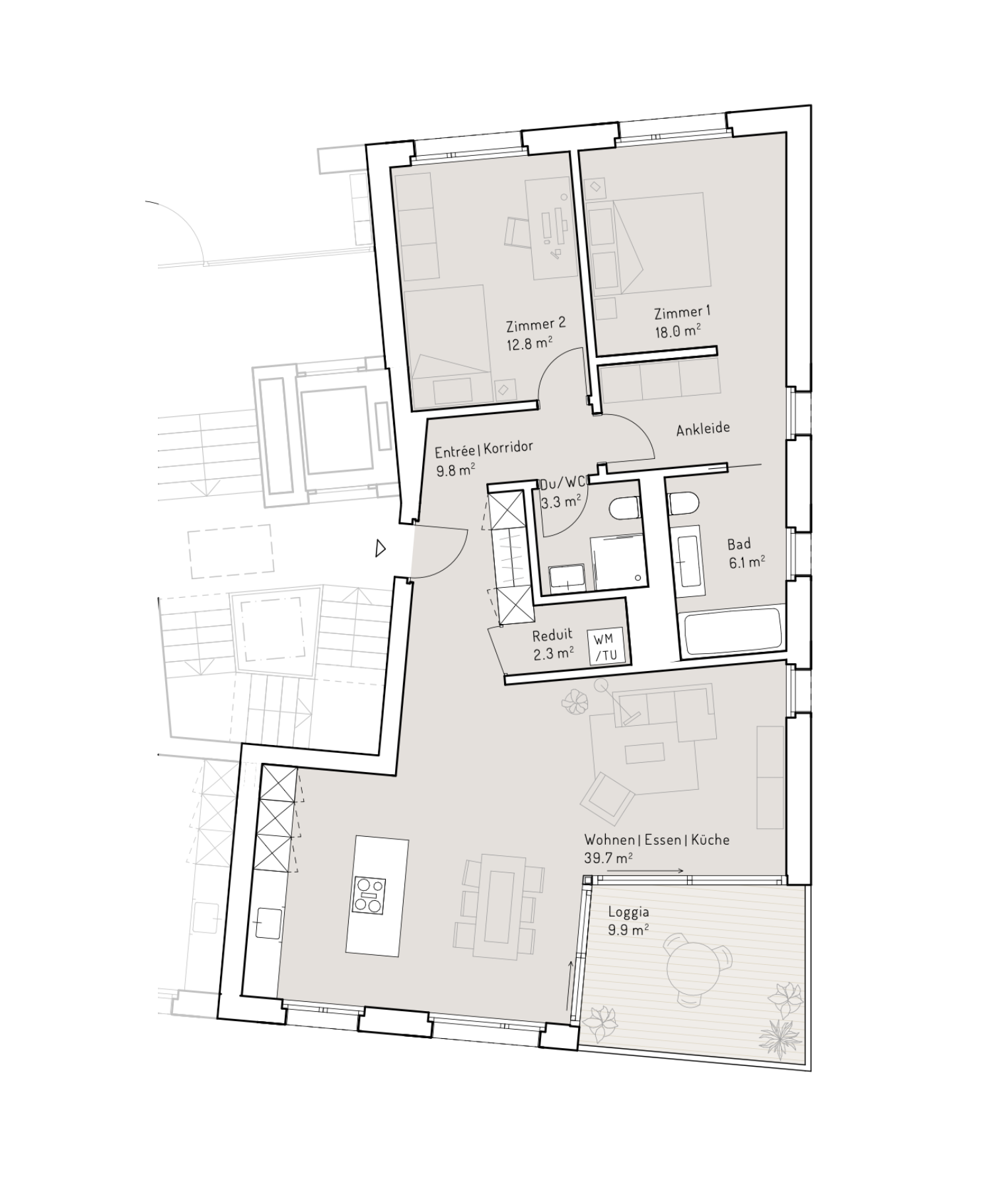
Es werden insgesamt 55 Wohnungen und 3 Gewerbeflächen im Erdgeschoss geplant.
"Im Herzen" Uetendorf
Zur Verkaufsseite
Standort
ZPP 1 Landi Uetendorf
Bauherrschaft
BHG Landi + Partner AG
Architektur
Dällenbach/Ewald Architekten AG
Landschaftsarchitektur
Weber + Brönnimann AG
Bauingenieur:in
Bührer + Dällenbach Ingenieure AG
Holzbauingenieur:in
Indermühle Bauingenieure AG
HSLE-Ingenieur:in
SGT AG Planungsbüro, Standort Bern
Bauphysik
HSR Ingenieure AG
Geologe:in
Kellerhals+Häfeli AG