Datenschutzeinstellungen
Diese Webseite benutzt Cookies. Nähere Informationen erhalten Sie in unserer Datenschutzerklärung. Sie können Ihre Entscheidung jederzeit dort ändern.
Ausgangslage
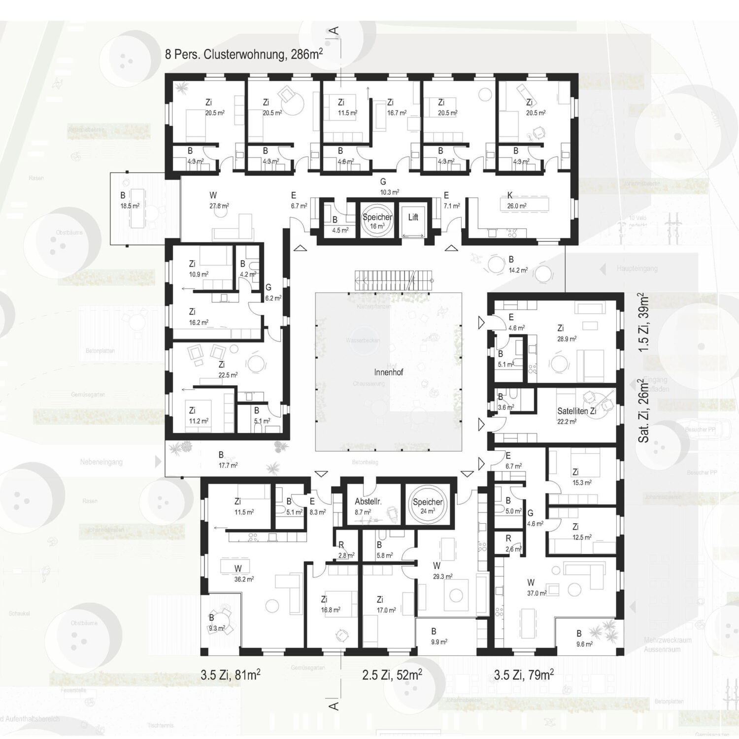
Als letztes Teilstück der Siedlung Stuckimatte in Steffisburg soll ein Projekt erarbeitet werden, welches die Anforderungen der 2000 Watt Gesellschaft erfüllt und durch ein flexibles Grundrisskonzept sowohl Cluster- als auch konventionelle 1.5 – 4.5 Zimmer Wohnungen anbieten kann.
Gestaltungskonzept
Die architektonische Konzeption ist geprägt durch das Thema des gemeinschaftlichen Wohnens. Zwei Baukörper bilden ein Ganzes. Es entsteht eine Vielfalt an gemeinschaftlichen Aussenräumen die den Dialog unter den Bewohnern fördern. Die Lage des Projekts an der Kreuzung Industrieweg/Weberweg, zwischen historischer Tuchfabrik sowie der markanten Siedlung Stuckimatte, zusammen mit dem formulierten Raumprogramm, erfordert eine neue Gebäudetypologie. Zwei winkelförmige Gebäude werden so zueinander gestellt, dass sie gemeinsam ein gegliedertes Ganzes bilden. Ein offener Innenhof dient der Wohnungserschliessung, als gemeinschaftliche Aussenfläche und Begegnungszone. Der Innenhof schafft Identität und unterstützt die Bildung einer Gemeinschaft unter den Nachbarn. Durch den Versatz der Volumen entsteht auf Seite Weberweg eine klare Eingangssituation. Der Zugang führt, wie am Weberweg üblich, zwischen zwei Gebäudevolumen hindurch zu den Wohnungstüren.
Energiekonzept
Der Energiebedarf für Heizung und Warmwasser wird zu rund 80% über Solarenergie gedeckt. Die mittels Sonnenkollektoren erzeugte Wärme wird in zwei Saisonspeicher von total 40'000 Liter gespeichert. Um die gewonnene Energie möglichst effizient zu nutzen, werden Duschrinnen mit Wärmerückgewinnung eingebaut. Die fehlenden 20% des Heizenergiebedarfs werden über eine kleine Grundwasserwärmepumpe erzeugt. Eine 200m² grosse Photovoltaikanlage liefert die benötigte elektrische Energie. Ein Batteriespeicher stellt die Versorgung während der Nacht sicher.
Standort
Weberweg, Steffisburg
Veranstalter:in
Stucki's Söhne AG, Steffisburg
Architektur
Dällenbach Ewald Architekten AG
Landschaftsarchitektur
Extra AG
Energie
Weber Energie + Bauphysik
Visualisierung
Dunedin Arts
Studie
September 2016 - August 2017