Datenschutzeinstellungen
Diese Webseite benutzt Cookies. Nähere Informationen erhalten Sie in unserer Datenschutzerklärung. Sie können Ihre Entscheidung jederzeit dort ändern.
Ausgangslage
Im Projektwettbewerb wird ein neuer Quartierbaustein entworfen, der die bestehende Bebauung ersetzen und dem Bostuden Quartier neues Leben mit einer identitätsstiftenden Architektur schaffen soll.
Konzept
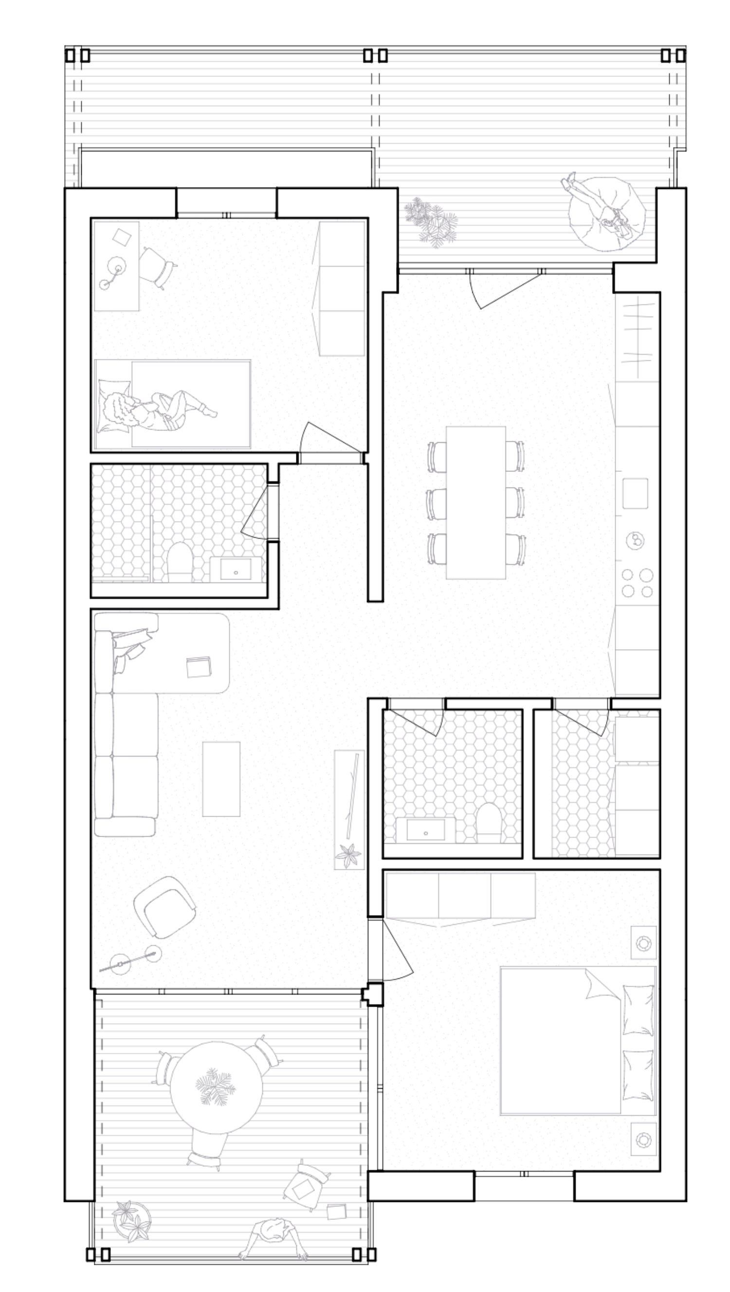
Mit einer übergeordneten Geometrie, jedoch unterschiedlicher Volumetrie vermitteln vier Einzelgebäude als Streichquartett in ihrer städtebaulichen Setzung die bewegte und akzentuierte Haltung des ANDANTINO: Unaufgeregt, aber differenziert. Mit der Absicht eine neue eigenständige und identitätsstiftende Siedlung zu etablieren, besetzen die vier Gebäude die Ränder des Areals und spielen Flächen für einen sozialräumlich verbindenden Innenhof frei. Die geschickte Höhenstaffelung mit differenzierten Erschliessungstypologien lässt ein Areal entstehen, welches diversen Ansprüchen und Lebenssituationen entspricht. Herzstück ist das überhohe Erdgeschoss an der Kreuzung Bubenberg- von May Strasse, welches mit seinen Quartiernutzungen eine Ausstrahlungskraft über das Areal hinweg besitzt und so zu einem neuen Treffpunkt im Bostuden Quartier etabliert.
Aufgabe
Arealentwicklung
Auszeichnung
Wettbewerb 3. Rang
Standort
Bubenberg- und von May-Strasse, 3604 Thun
Veranstalter:in
Previs Vorsorge
Architektur
Dällenbach/Ewald Architekten AG
Landschaftsarchitektur
w+s AG
Holzbauingenieur:in
Indermühle Bauingenieure htl/sia
Visualisierungen
Atelier Brunecky
Modellbau
Brunner Architekur-Modellbau