Datenschutzeinstellungen
Diese Webseite benutzt Cookies. Nähere Informationen erhalten Sie in unserer Datenschutzerklärung. Sie können Ihre Entscheidung jederzeit dort ändern.
Ausgangslage
Die Gemeinde Wald, situiert auf dem Hochplateau des Längenbergs, beabsichtigt sein sogenanntes Wiedmer-Haus - ehemaliges Wohnhaus mit Kramladen und seit 25 Jahren unbewohnt - zu erneuern.
Mit einer Gesamtsanierung der historischen Liegenschaft soll das Dorfzentrum dank öffentlichen Nutzungen, wie Dorftreff, Gästezimmer sowie einer Mietwohnung belebt und aufgewertet werden. Erwünscht ist eine Variante, die den vorhandenen Raum unter Wahrung des Gebäudecharakters und Berücksichtigung aller Rahmenbedingungen möglichst optimal, attraktiv und kreativ bespielt.
Konzept
Unser Vorschlag von einem Haus, welches sich zum öffentlichen Raum, dem Dorfplatz orientiert und die alte Rauchküche aufwertet, überzeugte die Jury und erhielt folglich den Zuschlag.Mit einem grosszügigen Durchbruch in der alten Steinwand wird eine neue Adressierung geschaffen. Das Wiedmer-Haus öffnet sich zum Dorfplatz und wird der neue Treffpunkt für Bewohner und Besucher dank seiner räumlichen und funktionellen Ausstrahlung.
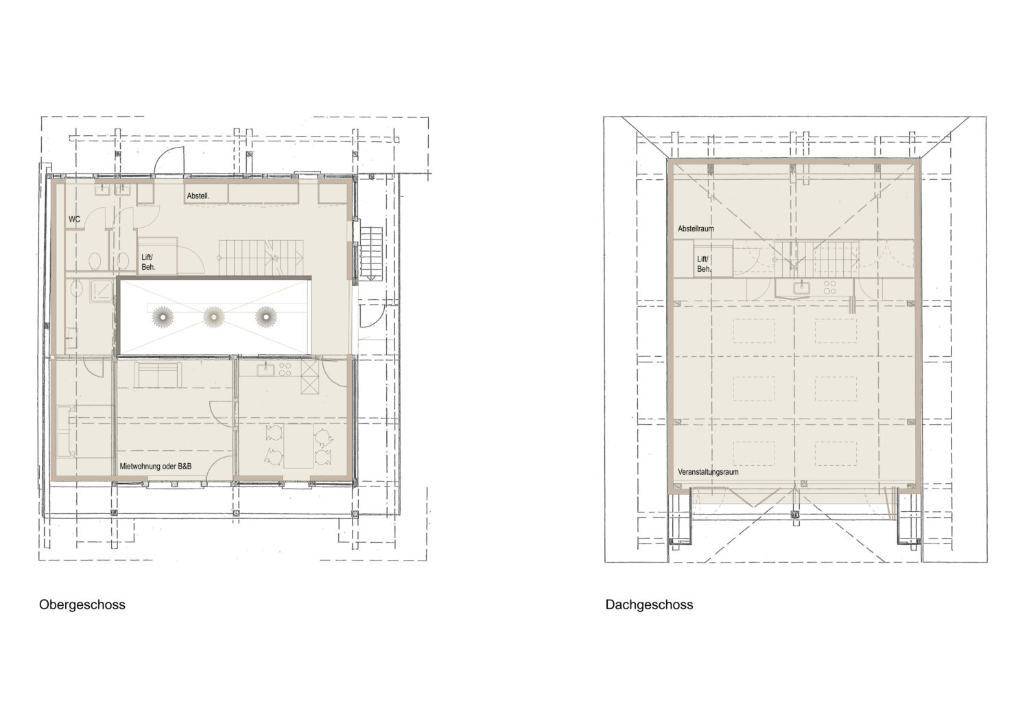
Die ehemalige Rauchküche, neu interpretiert als Kern des Gebäudes, wird zum Bistro des Dorftreffs. Sie begünstigt die Synergien zwischen den verschiedenen Nutzungen und die Begegnungen. Das Erdgeschoss ist ganz dem Dorftreff gewidmet und ist mit seinen kleineren Räumen prädestiniert für die Vereine. Im Obergeschoss findet eine kleine Mietwohnung oder Gästewohnung (B&B) Platz. Die schöne Holzstruktur des Dachraums wird hervorgehoben und zum idealen einheitlichen Veranstaltungsraum.
Standort
Kirchstrasse, Zimmerwald
Auszeichnung
Rang 1
Veranstalter:in
Einwohnergemeinde Wald, BE
Architektur
Dällenbach/Ewald Architekten AG